Floor Plans
Rooms
-
The Cedars - Bedroom 1 sleeps 2 in zip and link beds (super king or twin) Bedroom 1
Bedroom 1 has zip and link beds that can be arranged a s a super king or two singles. The en suite bathroom has a free standing bath and a separate shower. The full size cot can only stay in this room.
-
The Cedars - Bedroom 2 sleeps 2 in zip and link beds (super king or twin) Bedroom 2
Bedroom 2 sleeps 2 in zip and link beds (superking or twins) and has an en suite shower room.
-
The Cedars - Bedroom 3 can sleep 3 in zip & link beds (super king or twin) and a pull out truckle bed Bedroom 3
Bedroom 3 has an en suite shower room and zip and link beds that can be arranged as a super king or two singles. This room can accommodate an extra guest in a pull out truckle bed.
-
The Cedars - Bedroom 4: Wake up to birds singing from the treetops Bedroom 4
Bedroom 4 sleeps 2 in zip and link beds that can be configured as a super king or twins, and there is room for an extra guest in a pull out truckle bed. This bedroom has an en suite shower room.
-
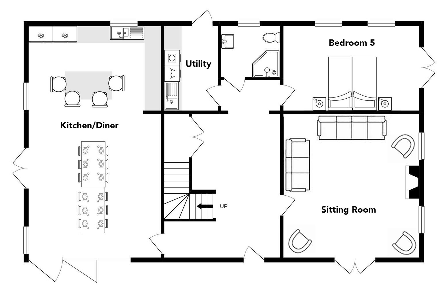
The Cedars - Bedroom 5: A ground floor room with zip and link beds Bedroom 5
Bedroom 5 is an access friendly room on the ground floor, with zip and link beds (superking or twin) and an en suite wet room.
-
We don't have an image of this room just yet, sorry. Additional Equipment
1 cot, 1 highchair, 1 booster seat & stairgates can be provided on request.